Rafael Soldi
Rafael Soldi
Rafael Soldi
Rafael Soldi
Rafael Soldi
Rafael Soldi
Rafael Soldi
Rafael Soldi
Rafael Soldi
Rafael Soldi
Rafael Soldi
Rafael Soldi
Rafael Soldi
Rafael Soldi
Rafael Soldi
Rafael Soldi
Rafael Soldi
Rafael Soldi
Rafael Soldi
Rafael Soldi
Rafael Soldi
Rafael Soldi
Rafael Soldi
Rafael Soldi
Rafael Soldi
Prudential Building / Museum Square Building
Los Angeles, CA
Welton Beckett of Wurdeman & Becket (1949)
SAG-AFTRA Foundation
Screen Actors Guild + America Federation of Television and Radio Artists
Completed June 2024
12,200 sf Penthouse
Howard Building Corporation
Structural Engineer | Silman Structural Solutions
MEP & Building Systems | Derive Engineers
Acoustic Design | Akustiks
Lighting Design | dark light Design
Theater Design | Theater Projects
Theater Seating | Series Seating
AV Design | Boyce Nemec
Furniture | Two-Point
Permit Expediting | Permit Advisors
Signage | Sign Specialists Corporation
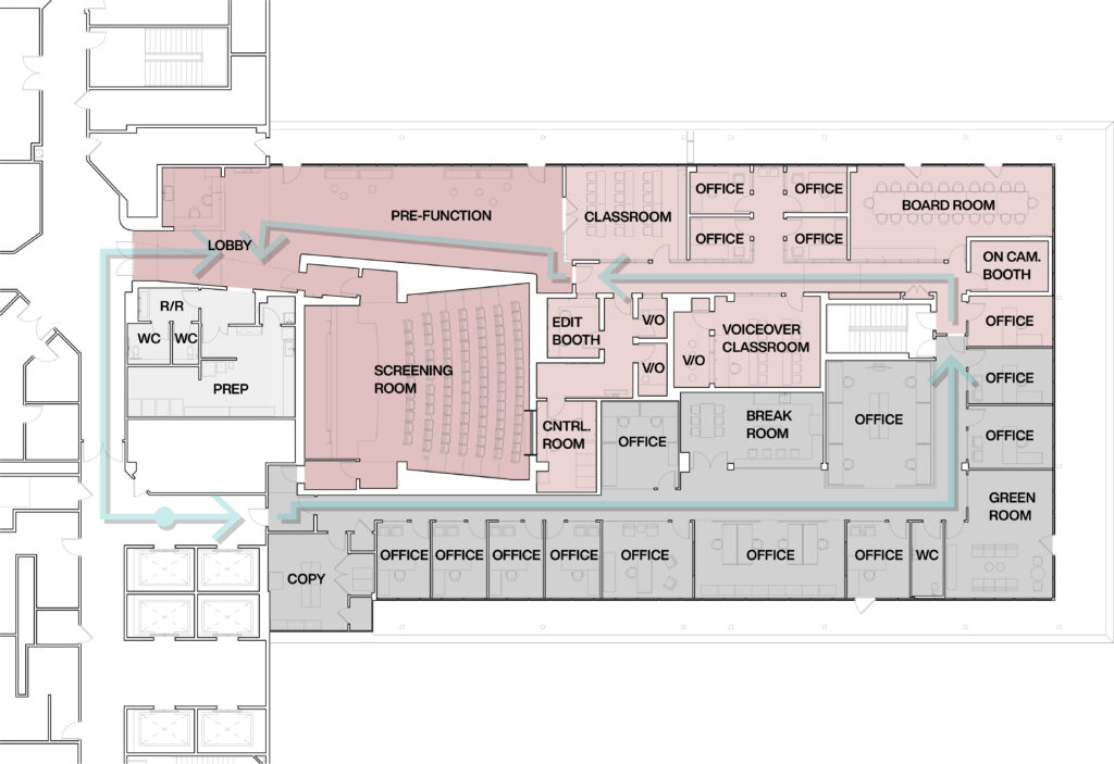
Best Practice is delighted to showcase their work for the SAG-AFTRA Foundation’s state-of-the-art facility atop their building on Wilshire Blvd. in Los Angeles. Located on the Penthouse level of the famed 1949 building designed by Wurdeman & Becket, the 12,200 sf space contains a new 100 person screening room, an educational facility with voice-over labs, recording sound booths, on-camera studios, tech lab, editing bay and classrooms in addition to offices for the foundation itself. The facility serves as a vital part of the entertainment industry, providing free professional development services and financial aid to the over 160,000 SAG-AFTRA performers located all over the country.
Rafael Soldi
Previously, the SAG-AFTRA facilities were spread throughout multiple floors and spaces in the building, making it difficult for union members to navigate, and complicating the operations of the foundation.
Consolidating all the foundations’ spaces on the 10th floor Penthouse on Wilshire Boulevard, the 12,200 sf facility expands and enhances the foundations’ existing infrastructure, providing much needed space to engage with educators, actors, voice artists as well as the film industry at large. Comprised of three main elements; the foundation office, the educational programs space and the Screening room with its lobby and support spaces, the new center will be a home base for performing artists in L.A.
Best Practice
Best Practice
Rafael Soldi
Rafael Soldi
Rafael Soldi
Rafael Soldi
Rafael Soldi
Rafael Soldi
Opposite the view side of the gathering space, the beautiful wood tambour clad screening room provides the heart of this new project. The jewel box theater offers an intimate viewing experience with seats for 100 people in a luxurious and cozy room tucked in the center of the building. This screening room with its new lobby & gathering space will allow the SAG -AFTRA foundation to host all kinds of events for the industry, particularly by showcasing films that might now have wide commercial distribution.
Rafael Soldi
Rafael Soldi
Rafael Soldi
The educational program is directly connected to the gathering space via a connection in the lobby and leads to a variety of classrooms and labs that support the members of the SAG-AFTRA union. Conceptually thought of as “backstage,” dark colors line the corridor and are contrasted by large, red light fixtures overhead. Offices for educators are clustered in the center of this wing, giving easy access to the voice-over labs, on-camera studios, and recording booths. Tech labs and editing bays are part of the classroom spaces, while a large conference room doubles as an extra class space if needed.
Rafael Soldi
Rafael Soldi
Rafael Soldi
Rafael Soldi
The foundation offices make up the 3rd wing of the project and occupies the South side of the 10th floor. With a mixture of individual offices and open workspaces, all have easy access to both the screening room as well as the educational programs space. A generous breakroom for foundation staff is located at the center of the space while a greenroom for visiting performers takes a corner spot with windows on both sides.
Rafael Soldi
Seen as the complement to the education programs’ darker vibe, the office is light and bright but utilizes the same red overhead lights as a pop of color.
Rafael Soldi
Rafael Soldi