Rafael Soldi
Rafael Soldi
Rafael Soldi
Rafael Soldi
Rafael Soldi
Rafael Soldi
Rafael Soldi
Rafael Soldi
Rafael Soldi
Rafael Soldi
Rafael Soldi
Rafael Soldi
Rafael Soldi
Rafael Soldi
Rafael Soldi
Rafael Soldi
Rafael Soldi
Rafael Soldi
Rafael Soldi
Rafael Soldi
Rafael Soldi
Rafael Soldi
Rafael Soldi
Madison Park. Seattle, WA
Completed August 2024
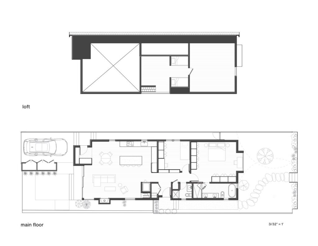
Lot Size: 3000 sf
House: 1315 sf + 175sf Loft
Summit Development
Harriott Valentine Engineering
Stillpoint Studio (Landscape Design & Install)
Seeking to maintain a foothold in Seattle to be close to family while also spending time at their working farm on the San Juan Islands, the owners of Rad Trad were looking for a way to downsize in the city without sacrificing on a laundry list of wants and needs. Coupling modern spatial planning with finishes and cabinetry that leaned towards the traditional, the resulting collaboration with Best Practice is a charming home that finds the sweet spot between classic and current. Rad Trad is the eponymous realization of ‘rad’ (read: cool) concepts with more ‘trad’(itional) stylings.
Best Practice
Best Practice
Rafael Soldi
Rafael Soldi
At a modest 1,315 square feet the new structure packs a punch in a small footprint. A double height living space with exposed wood collar ties and a handsome fireplace feels larger than it is thanks to clever verticality. Large glass slider doors further expand the space, allowing for ample natural light and seamless indoor-to- outdoor living. In blurring the distinction between living, dining, and kitchen, the design team sought to fulfill the homeowners’ desire for a modern, flexible, informal family gathering space.
Rafael Soldi
Rafael Soldi
Rafael Soldi
Rafael Soldi
Rather than an entire second story, the couple opted for a loft, therefore saving on construction cost by building less, and eliminating the footprint of a full staircase. Instead, residential code allows for a loft under a certain size to be accessed by an alternating tread stair – the space gained afforded a laundry closet and entry closet on the first floor and in the loft, a recreation and bunk room for the grandkids as well as a bonus space that doubles as painting studio and storage
Rafael Soldi
Rafael Soldi
Rafael Soldi
Rafael Soldi
Rafael Soldi
Rafael Soldi
Rafael Soldi
Rafael Soldi
Best Practice