Downtown Spirits

Location

Seattle, WA

Neighborhood

Denny Triangle

Status

Completed Summer 2023

Size

3750 sf including the Mezzanine

Contractor

BMDC Services

Collaborators

Blank Space Graphic Design
Harriett Valentine Engineers
Guardian Security
AVI Systems

Client

Downtown Spirits

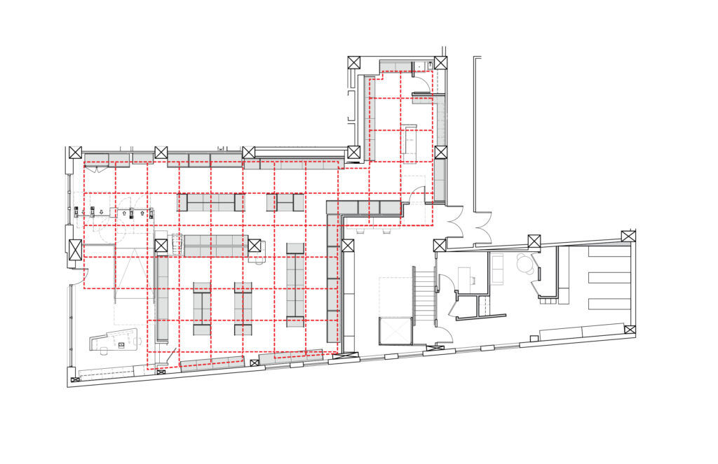
Best Practice teamed up with local business Downtown Spirits to create a new, unique location for this purveyor of craft beer, spirits and wine. After their longtime location in the Denny Triangle was demolished, they were excited to make a new home in the Tower Building on 7th Avenue (even closer to downtown!).Using proprietary Just-Walk-Out technology, the shop houses an overhead grid to support the cameras and sensors that allow vetted shoppers to pick up items and walk out of the store without going through a traditional point-of-sale check out line. The streamlined service has digital entry gates that scan credit cards or a code from an app (after an ID check) and then record the payment after passing back through the gate.

Building on the Downtown Spirits brand colors and vibe, the shop offers a welcoming mosaic tile floor that leads you to the entry desk, glossy black tile elements mixed in with plywood wall cladding and bright pops of red that enliven the large volume of space. A lively mural created by graphics team  BLANK SPACE provides color on the exterior, and shows up periodically on the interior upper walls, creating pattern and texture throughout.

Blank Space

BMDC

BMDC

BMDC

Best Practice

BMDC

Blank Space