Shed-O-Vation

Location

Madrona, Seattle, WA

Status

Completed July 2021

Scope

Remodel
Detached Accessory Unit

Size

217 ft²

Related Project

Back Yard Bump-Out

Contractor

Sound Builders NW

Photography Credit

Rafael Soldi

Press

Dezeen
1889

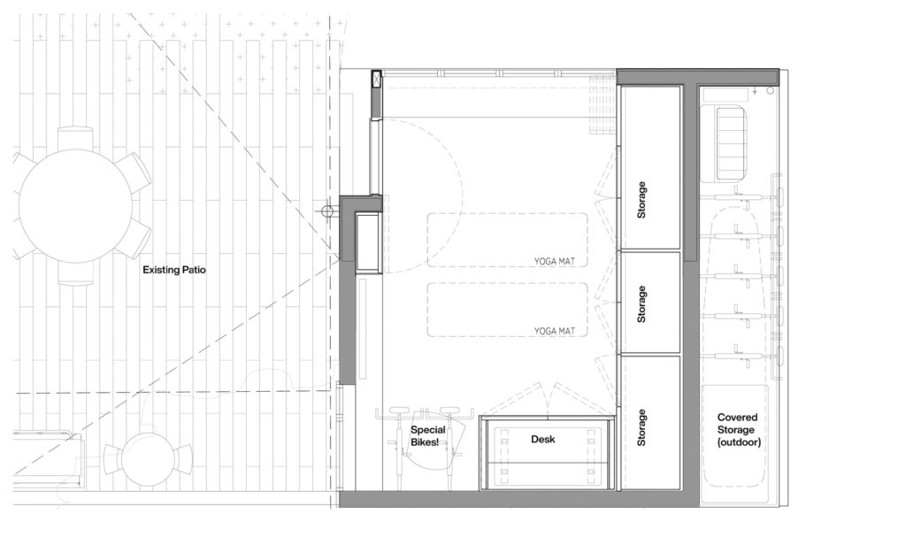
A simple, utilitarian storage shed was innovatively transformed into a multifunctional home office, exercise studio, storage room, and backyard oasis for a previous project (Back Yard Bump-Out). This new backyard multi-use studio provides the needed separation and relief to a new all-encompassing home-life reality while remaining connected to home and family just steps away.

Rafael Soldi

Best Practice

Rafael Soldi

Rafael Soldi

A small office space was concealed behind plywood cabinetry, allowing the room to be used for multiple functions, as well as providing lots of storage.

Rafael Soldi

Rafael Soldi

An accordion door opens onto the lush and private rear yard, creating a beautiful connection to the garden and calm space for yoga.

Rafael Soldi