Mark Woods
Mark Woods
Mark Woods
Mark Woods
Mark Woods
Mark Woods
Mark Woods
Mark Woods
Mark Woods
Mark Woods
Mark Woods
Mark Woods
Seattle, WA
Completed 2015
380sf
Ryan Elsos
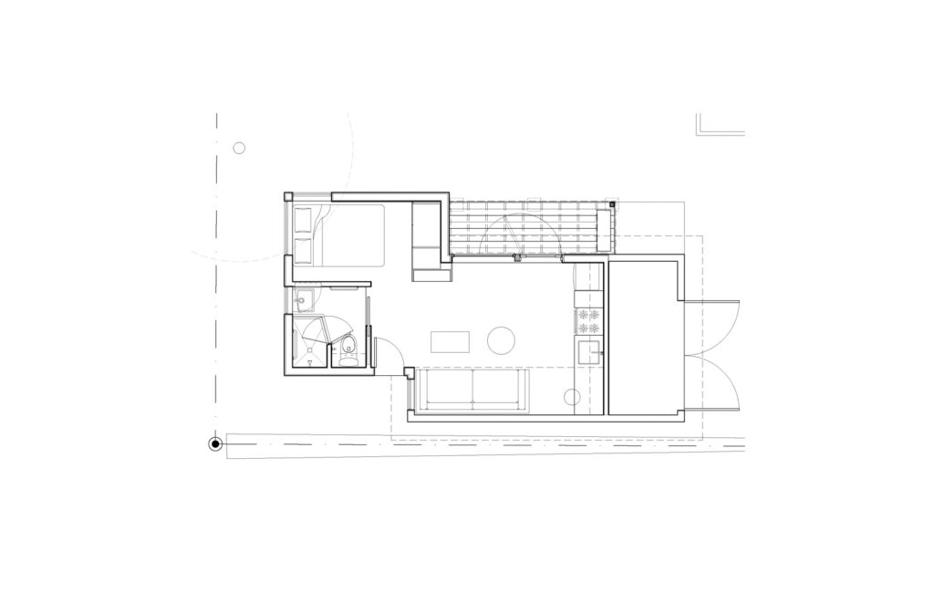
An existing detached garage is transformed into a backyard dwelling with a modern addition.
When our client wanted to make a place close to home for her dad, she enlisted Best Practice’s help to turn this hum-drum garage into a handsome and delightful pad. The original garage was not big enough to provide dad with all the needed essentials for independent living, so a modern addition was the perfect solution to an added sleeping area and accessible bathroom.
Dad’s new pad was given a welcoming entry and an identity of its own with a colorful trellis, front door, and new porch.
Though compact and efficient, this new space gave dad an oversized and airy welcome, and a place to call his own.
Best Practice
floor plan